Palestra polifunzionale di Sirtori (LC)

Cronologia / Chronology

  • Progetto definitivo:
    2004
  • Progetto esecutivo:
    2005
  • Realizzazione:
    2006-2007 completata

Dati essenziali / Main data

  • Committente:
    Comune Sirtori
  • Superficie:
    1.975 mq.
  • Costo di costruzione:
    €. 1.200.000,00
  • Servizi professionali:
    Progettazione architettonica definitiva ed esecutiva, coordinamento delle prestazioni specialistiche, computi metrici e capitolati.

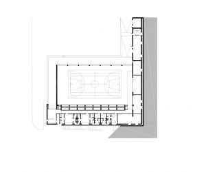
La nuova palestra si colloca in prossimità dell’ingresso al Centro Sportivo comunale esistente, definendo il fronte di accesso all’intera area.

L’articolazione volumetrica asseconda con naturalezza l’andamento scosceso del terreno identificando:

- il volume corrispondente allo spazio di gioco;

- il corpo di servizio seminterrato adibito a spogliatoi e ingresso atleti;

- lo spazio per il pubblico con accesso dalla quota del parcheggio esistente;

- l’elemento di servizio che si protende verso il campo di calcio sorreggendo il rilevato esistente e ospitando i locali tecnici di servizio.

L’impossibilità di svolgere la Direzione dei Lavori, purtroppo assegnata a terzi, ha impedito il controllo esecutivo del cantiere, le cui carenze sono risultate evidenti nel controllo dei dettagli.

Partner

  • LFL architetti
  • Luconi Fumagalli Lavorincorso

Pubblicazioni

  • TSport, Editoriale Tsport srl, n° 302 Marzo Aprile 2015 Progetti e Concorsi, Edilizia e Territorio, Il Sole24Ore, 21 Luglio 2014

Via IV Novembre, 17, 23851 Galbiate LC / T + F 0341 540371 P.Iva - CF 02258100136 - Questo indirizzo email è protetto dagli spambots. È necessario abilitare JavaScript per vederlo.